Хозяева этой московской квартиры много путешествуют, увлекаются искусством и, создавая для них интерьер, дизайнер Ольга Черненко вдохновлялась атмосферой праздничной и романтичной Венеции.
Площадь: 69 кв. м
Квартира расположена в столичном ЖК West Garden. Супруги любят путешествовать, увлекаются искусством, живописью, и их пожеланием было создание эффектного и оригинального современного интерьера, который будет актуален и через 15 лет.
Автор проекта дизайнер Ольга Черненко.
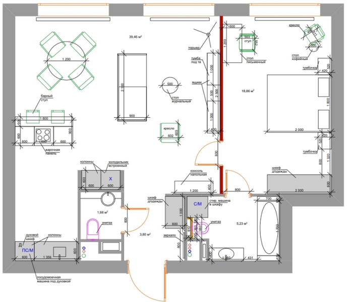
Дизайнеру Ольге Черненко нужно было оборудовать гостиную, разместить кухню в небольшом помещении с барной стойкой, обустроить спальню с рабочим местом и большим шкафом для одежды, а также предусмотреть в одном из санузлов постирочную зону.

На фоне стен, выкрашенных в нейтральный, легкий бежевый тон и белоснежной консоли под ТВ, особенно выразительно смотрятся яркие акценты — синие диван, люстра в столовой, шторы с золотистой окантовкой, авторская живопись, написанная Ольгой Черненко специально для интерьера. На полу — инженерная доска из дуба 20 мм, Finex. Кресло, Calligaris. Ковёр из шелка и шерсти, Sitap. Настольная лампа Taccia, торшер Illuminator — все Flos.

Диван синего цвета оттеняет покрывало нежного серого цвета с орнаментом в виде листьев. В дизайне лепного декора из гипса обыгран мотив традиционных венецианских окон. Карнизы изготовлены на заказ по эскизам Ольги Черненко компанией Artpole. Радиаторы, Arbonia (Германия). Подоконники выполнены из искусственного камня. Обеденный стол, Pedrali. Стулья, Calligaris. Подвесной светильник, La Murrina. Картина, Ольга Черненко.
Чтобы сделать просторную гостиную, между ней и маленькой комнатой демонтировали ненесущую перегородку, а две кухонные колонны перенесли в общественную зону, на их месте разместили холодильник и пенал для хранения.

Кухня оборудована в небольшой нише. Фасады шкафов глухие и окрашены в цвет стен, что делает их незаметными в пространстве гостиной.

Кухня выполнена на заказ, фартук и столешница из искусственного камня. Техника, Whirlpool (Италия). Напольная плитка, ABK Ceramiche. Стены, краска Little Green (Англия).

Стены в гостиной окрашены краской Little Greene (Англия), создающей необходимый фон для красочных деталей. Краска устойчива к истиранию, и её можно мыть. Бра, La Murrina. Кресло, Calligaris.
Интерьер оформлен в современном стиле с элементами неоклассики в венецианском стиле. «Хозяева — люди творческие, и мне хотелось создать в квартире атмосферу праздника, — рассказывает о дизайн-концепции Ольга. — Поэтому я вдохновлялась Венецией, городом чувственным и романтичным, который всегда вызывает яркие эмоции и желание прикоснуться к вечной красоте. Так, например, в лепном карнизе из гипса нашел свое отражение мотив венецианских окон. Хотя параллели, конечно же, не такие явные. Они построены не на прямых отсылках к венецианскому стилю, а скорее апеллируют к ассоциациям».

Вид из гостиной на спальню. Двери из тонированного стекла с наличниками из металла, компания Union.

Спальня. Кровать, шкаф для одежды, Tomasella (Италия). Люстра, Facon de Venice. На стенах — краска Little Greene. Ковер из шелка и шерсти, Sitap (Италия).

Фрагмент спальни. Кресло, Potocco. Прикроватные тумбочки, кофейный столик, Angelo Cappellini. Зеркала по бокам кровати окрашены золотой краской. Пол выложен инженерной доской из дуба, Finex.
Для отделки пола в прихожей, на кухне и в санузлах использован керамогранит ABK Ceramiche с рисунком под мрамор, в жилых комнатах — инженерная доска Finex из дуба. Интерьер построен на эксклюзивности декоративных элементов: дверей из тонированного стекла с металлическими наличниками, декоративных светильников из муранского стекла фабрики La Murrina в гостиной и эффектных подвесов от фабрики Facon de Venice в спальне, дорогих и благородных ковров из шелка и шерсти, авторской живописи… Все это отражает дух Венеции и создает неповторимую и уникальную атмосферу.

Ванная комната. Плитка настенная Fanal, напольная — ABK Ceramiche. Сантехника, Roca, Belbagno. Подвесная тумба Tomasella (Италия) со столешницей из искусственного камня. Шкаф из МДФ для стиральной машины выполнен на заказ, Россия.

Гостевой санузел. Напольная и настенная плитка, ABK Ceramiche. Краска, Little Greene (Англия). Сантехника, Roca, Belbagno. Столешница из искусственного камня.
Цветовая гамма выдержана в венецианском стиле с использованием ярких и сочных цветов, насыщенных глубиной и светом — ярко-желтого, бордового и синего. «Такая гамма характерна для города, где всегда было много дождей», — поясняет дизайнер. Фоновым оттенком для стен гостиной выбран легкий бежевый тон, а потолок выкрашен в цвет розового заката. В спальне, выдержанной в спокойной сине-серой гамме, дополнительным цветом выступают фрагменты золота (золотистая люстра фабрики Facon de Venice, зеркала, расписанные золотой краской с характерным блеском) и благородный бордовый оттенок.

Прихожая. Шкаф, Tomasella. Зеркало выполнено на заказ. Напольная плитка, ABK Ceramiche.

Планировка квартиры.

