Есть квартиры с такой планировкой, которой следует избегать. Александра Журавлева специализируется как раз на них, радуется сложным задачам и превращает минусы в плюсы
Кухня-гостиная. Кухонный блок с выступающей барной зоной отделяет кухню от прихожей. Заварочный чайник-«пузан» ручной работы привезен из Крыма. Металлический придиванный столик, винтаж.

Автор проекта архитектор Александра Журавлева.
ОБЩИЕ ПАРАМЕТРЫ
Тип недвижимости: квартира-новостройка
Где находится: Москва
Метраж: 95 м2
Стиль: современный
Основная идея проекта: создать яркий, запоминающийся интерьер, гармоничный своим хозяевам
Цветовая гамма: орехово-шоколадная
Автор проекта: архитектор Александра Журавлева, https://t.me/zhuravlevaalexsandra, https://vk.com/zhuravlevaalexsandra, т. +7 (903) 979-42-11

Кухня-гостиная. Картина в простенке между окнами написана автором проекта.
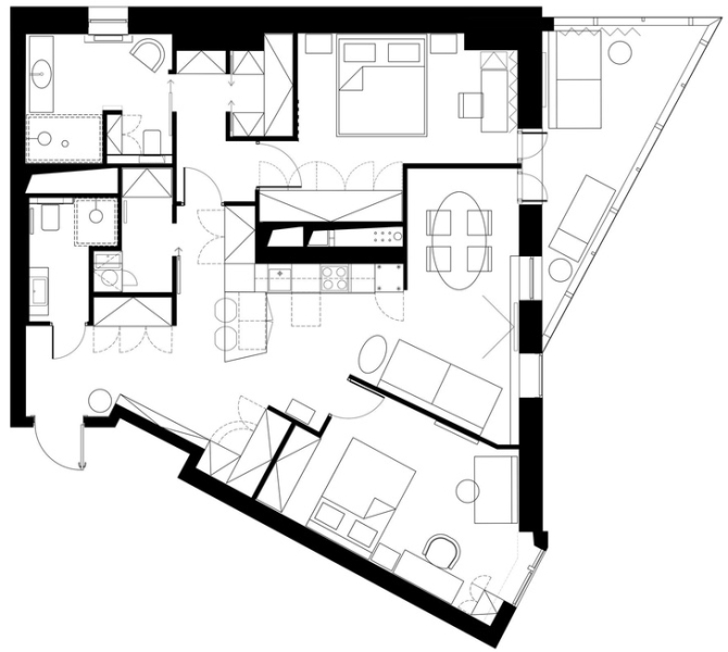
Эта квартира имеет в плане такую сложную конфигурацию, что у человека, который собирается сделать ремонт, может вызвать лишь одно чувство: что он попал, и выбраться будет трудно. Хозяйка уже начала ремонт, увидела перегородки, которые делили пространство на крохотные комнатки, и совсем пала духом, но тут судьба свела ее с архитектором Александрой Журавлевой.

Кухня разместилась в «закутке» перед гостиной и отделена от прихожей барной стойкой.
«Чем дурнее планировка, тем интереснее мне работать», — говорит Александра, и здесь ей однозначно повезло. Повезло и заказчице — Александра предложила ей круглую планировку, которая превратила минусы квартиры в плюсы. Вместо крохотных темных комнат — вихрь, который подхватывает каждого, кто переступает порог, и затягивает внутрь.

Кухня-гостиная. Диван, SKdesign. Стол, Loft Design.

Обеденная группа. Стол, Loft Design. Стулья привезены из Индонезии.

Вид на входную зону.
Пространство закручивается вокруг центрального элемента, который объединяет и одновременно разъединяет две автономные зоны для двух поколений — каждая со своей спальней и ванной комнатой. Частью этого магического элемента является кухонный блок с выступающей барной стойкой, которая отделяет кухню от прихожей.

Спальня представительницы младшего поколения рассказывает о творческой натуре ее хозяйки, которая рисует и занимается музыкой.

Спальня дочери, фрагмент.

Спальня дочери, фрагмент.
В отделке Александра использовала орехово-шоколадную гамму, необычные фактуры материалов, натуральный оникс с подсветкой, металлизированные штукатурки, разбавленную бирюзу и разнообразные оттенки металлов.

Главная спальня. Полигональное панно в изголовье кровати, выполненное по эскизам автора проекта, создает образ скалы разных оттенков гранита. Эти оттенки удалось получить с помощью декоративных французских штукатурок. Покрывало на кровати выстрочено по тому же рисунку.

Главная спальня, фрагмент.
В главном санузле, которому досталось окно, задачей было получить вау-эффект, поэтому керамогранит Rex с запоминающимся рисунком соединили с зеленым ониксом с подсветкой, которая выполняет функцию светильника. Консоль с элипсовидной раковиной изготовлена из беленого дуба по эскизу дизайнера, стул, вырезанный из массива тика, привезен из Азии.

Главный санузел.

Украшением квартиры стала застекленная терраса, вписанная в треугольник. Это зона отдыха, в которую можно выходить из спальни из столовой. Сейчас здесь летнее остекление, но его предполагается заменить на зимнее, чтобы комнатой можно было пользоваться в любую погоду.

Терраса, фрагмент.

Терраса, фрагмент.

Татьяна Филиппова

